CASE STUDY

Kichler Experience Center

Transforming a twice-a-year trade show presence into a dynamic, year-round brand experience center.

Twice a year in January and June, Dallas plays host to Lightovation, the International Lighting Show. For four days, this event draws thousands of lighting professionals from around the globe. To make the most of this brand-building opportunity, lighting companies often lease space at the Dallas Market Center, where Lightovation takes place.

Until recently, Kichler was one of those companies. Then they asked themselves: Why lease space that we only use for eight days a year, and with limited control, when we could make a splash by creating a dedicated, year-round design destination? A space flexible enough to accommodate the Lightovation crowd and meet the evolving needs of our growing brand? They called their idea an “Experience Center”, and they asked my team to design it.

Client: Kichler Lighting

Location: Dallas, Texas

Size: 13,300 square feet

Completion Date: 2023

MY ROLE


Creative Director

HIGHLIGHTS


8

Month Timeline

5

Guest Experience Types

1st

Permanent Experience Center for the Lighting Industry

Embracing a Spectrum
of Possibilities.

During our research and discovery phase, we did a thorough audit of customer experience studies, including Kichler’s own research. Then we held stakeholder interviews with key members of Kichler’s various teams: marketing, sales, product, design and brand. Finally, we conducted a workshop to define the objectives of the Experience Center, with the results featured in our design input brief.

Kichler also asked us to help with site selection, a bonus for our design team. Together, we selected the International Center Building within the Dallas Design District and just a short shuttle ride from the Dallas Market Center. At just over 13,000 square feet, with a nearly 2,000 square foot mezzanine level, the space offered plenty of room to bring Kichler’s vision to life.

Mapping out the guest experience.

At this point, Kichler and my team agreed that the Experience Center should feature five distinct experience types: a “Wow” moment, training and education, trends and innovation, breadth of offering, and VIP-level customer service.

So we began translating these needs into schematic floor plans and concept directions.

This early ideation work resulted in several client-pleasing concepts. For example, a hospitality lounge on the mezzanine-level, where guests can work or relax; The Lighting Lab in the innovation area, where reps can demonstrate different lighting effects; and a raised runway near the entrance, where product-related art installations create an immediate “Wow” factor for guests walking in.

Directions for brand positioning.

Schematic floor plans exploring brand positioning:
More technology-driven?
Customer-service centered?
Experiential and immersive?

The winning direction: high-end hospitality.

Lighting inspired mood boards.

Cool, contemporary tones for the first floor to match daylight kelvin temperatures (5000k).

Warm, rich tones for the mezzanine to match evening kelvin temperatures (2700k).

Translating to three dimensions.

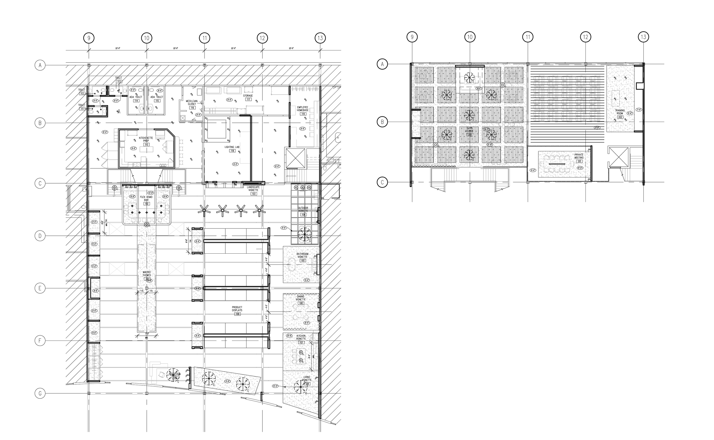
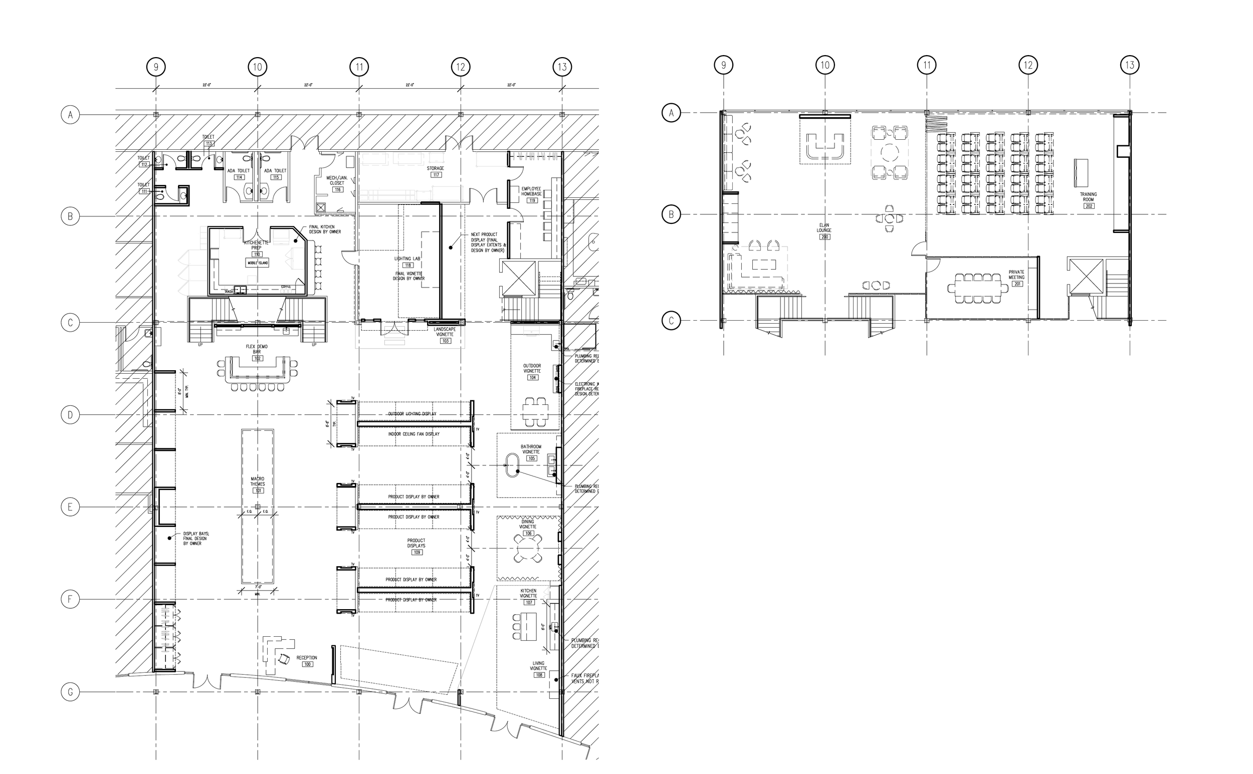
My team’s input and design development culminated in a comprehensive Design Intent Package, featuring detailed dimensional drawings, recommended finishes, and the technology recommendations that would bring the space to life.

Above all, our Design Intent Package spotlighted the strength of Kichler’s product offering. The combined effect of our Collection Stories spaces, Breadth & Depth Walls, and Design Vignettes (featuring their products in full-room environments) was the transformation of Kichler from a perceived “builder-grade brand” to a bona fide higher-end lighting option.

Sample of Design Intent Documentation

THE RESULT

Lighting a new path forward.

A truly phygital space, the finished Experience Center is hands-on, immersive and educational. It features smartphone integration and digital collateral, plus augmented and virtual reality environments. It’s also big enough and flexible enough to demonstrate large-scale trends, lighting effects like light layering, landscape lighting systems, and whole home lighting solutions.

Most importantly, the Experience Center allows Kichler customers to experience the brand in ways they simply can’t online, leading to increased brand specification and loyalty.

It’s a first-of-its-kind brand destination, where showroom owners can see for themselves the value of carrying Kichler. And no one in the industry has anything like it.

Project Details

  • Site Analysis
    Kathleen Carron
    Michael Kristofka

    Key Stakeholder Interviews
    Brian Gee
    Kathleen Carron

    Brand Positioning
    Kathleen Carron
    Brian Gee
    Michael K

    Design Input & Brief
    Kathleen Carron

  • Creative Strategy
    Kathleen Carron

    Concept Ideation
    Kathleen Carron
    Paul Kovacs
    Felipe Oropeza
    Maggie Walker

  • Design
    Kathleen Carron

    Tone of Voice & Copy
    Bob Raczka

    Renderings & Animations
    Felipe Oropeza

  • Documents & Drawings
    Kathleen Carron
    Paul Kovacs
    Maggie Walker

Next
Next

uni at IMG Academy